
1/7




+2
more
£300K
Size not specified
£300K
Sunny Bank Road
Size not specified
Development Land in Sunny Bank Road for Sale - £300,000
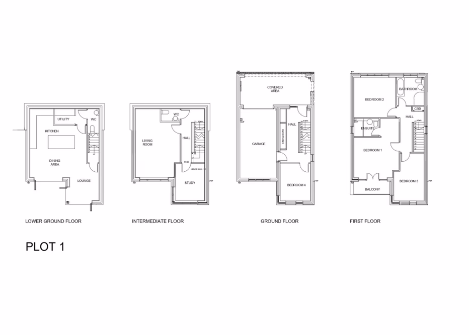
BUILDING LAND FOR THREE, DETACHED, FOUR STOREY FABULOUS HOMES WITH A LOVELY VIEW ACROSS THE VILLAGE AND RURAL SCENE BEYOND.
Development Land in Sunny Bank Road for Sale - £300,000
Size not specified
development
available
freehold
Description
BUILDING LAND FOR THREE, DETACHED, FOUR STOREY FABULOUS HOMES WITH A LOVELY VIEW ACROSS THE VILLAGE AND RURAL SCENE BEYOND.
Contact Agent
Simon Blyth, Holmfirth
Smart Picks — Professionals Relevant to This Land
Based on this property's key features, here are the specialists you may want to consult as part of your due diligence: land agents and rural solicitors.
Location
Sunny Bank Road

